0,34 €
0,28 €
Laufwagen 89x100 mm für Schiene 6V.089 Schiebetor 8 Rollen aus Stahl
product unavailable
Zur Wunschliste hinzufügen
Beschreibung
Laufwagen 8-rollig pendelnd für Schiebetor – Stahlrollen
Pendelnder 8-Rollen-Laufwagen ist ein robustes Führungselement für schienengeführte Schiebetore, kompatibel mit der Schiene 6V.089. Die mehrlagige Zentralkonstruktion sorgt für erhöhte Tragfähigkeit und Betriebsstabilität, während Stahlrollen einen jahrelangen reibungslosen Lauf des Torflügels gewährleisten.

Wichtigste Produktmerkmale
- Typ: pendelnder Laufwagen
- Anzahl der Rollen: 8
- Rollenmaterial: Stahl
- Kompatibilität: Schiene 6V.089
- Konstruktion: mehrlagig (erhöhte Tragfähigkeit)
- Montageplatte mit Bohrungen: 4× M16
- Gewicht: 11,3 kg
- Höhe (H): 169 mm

Langlebigkeit und Zuverlässigkeit für viele Jahre
Der Laufwagen zeichnet sich durch hohe Widerstandsfähigkeit gegen mechanische Beschädigungen und dynamische Belastungen aus. Das mehrlagige Zentralelement reduziert Verformungen unter hohem Druck, was einen stabilen Lauf selbst schwerer Torflügel gewährleistet. Die auf Lagern montierten Stahlrollen sorgen für leisen und gleichmäßigen Betrieb, minimieren den Rollwiderstand und reduzieren den Wartungsaufwand. Die Pendelkonstruktion kompensiert eventuelle Achsabweichungen der Schiene und schützt die Rollen vor ungleichmäßigem Verschleiß.


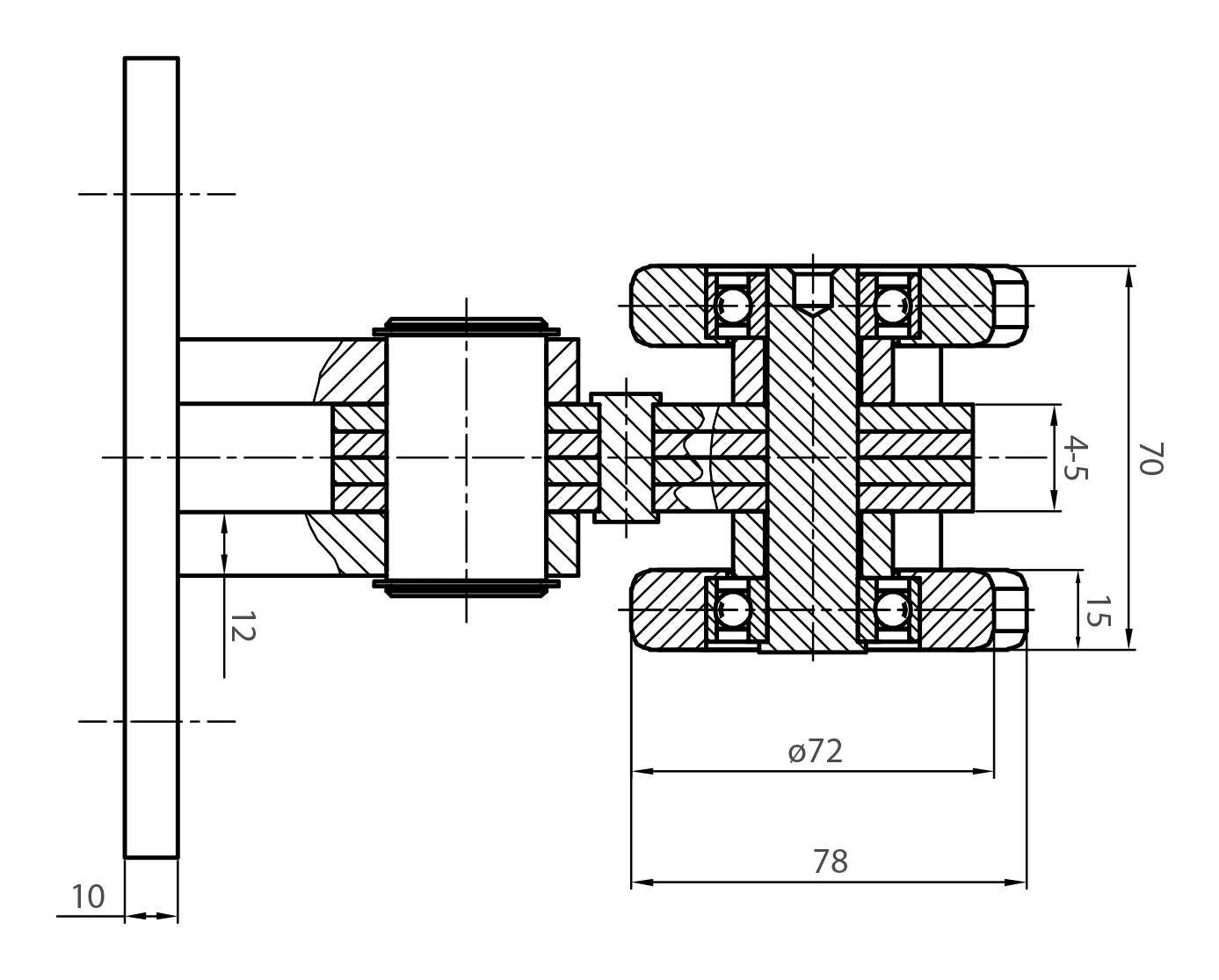
Außenabmessungen

Die technische Zeichnung zeigt die wichtigsten Maße des Laufwagens, die eine präzise Montageplanung im Torgehäuse ermöglichen:
- Abmessungen der Grundplatte: 150 × 300 mm
- Lochabstand der Montagebohrungen: 100 × 250 mm
- Montagebohrungen: 4× M16
- Randabstand der Bohrungen: 35 mm
- Gesamtbreite mit Rollen: 171 mm
- Gesamthöhe (Seitenansicht): 298 mm
- Achsversatz der Rollen zur Grundplattenkante: 75 mm

Rollen- und Querschnittsparameter
- Rollendurchmesser: ø72 mm
- Rollenbreite: 78 mm
- Höhe der Rolleneinheit: 70 mm
- Schienenführungsspalt: 4–5 mm
- Grundplattendicke: 10 mm
- Lagerdurchmesser: 12 mm
- Unteres Spiel: 15 mm
- Volumen: 5243,44 cm³
- EAN: 5903313200240
Der Laufwagen ist ein montagefertiges Bauteil, das nach der Befestigung am Torrahmen mit vier M16-Schrauben sofort einsatzbereit ist. Dank der soliden Stahlkonstruktion und präzise gefertigten Lagerungen bietet das Produkt jahrelangen, störungsfreien Betrieb selbst bei intensiv genutzten Industrietoren.
Ładowanie tabeli porównawczej...
Ładowanie galerii...
Technische Daten
| Laufwagenausführung | Schwenkbar |
| Max. Tragkraft [kg] | 350 |
| Laufschienengröße | 100x89x5 |
| Produkttyp | Einzelwagen |
| Rollenmaterial | Stahl |
| Anzahl Rollen [szt.] | 8 |
| Laufsystemtyp | Laufsystem |
Safety
Es werden alle Bewertungen (positive und negative) angezeigt, wobei die Anzahl der Bewertungen auf der Plattform begrenzt ist. Wir verifizieren, dass sie von Kunden stammen, die das Produkt gekauft haben. Weitere Informationen finden Sie auf unserer Seite Kommentarrichtlinien.